Godrej Air - Floor Plan

    Complete overview Of Floor Plans & Pricing for Godrej Air

    Welcome to Godrej Air Residential Apartments, a premium real estate project by Godrej Properties, one of India’s top-rated developers. If you’re searching for a new luxury home in the city, Godrej Air is an ideal choice. Located on a lush 6.2-acre expanse, this modern residential apartment complex is designed to offer both comfort and convenience in every corner.

    \n\n

    Godrej Air Residential Apartments stands out with its prime location in the center of the city, making it a top pick for homebuyers who value accessibility and urban amenities. The property features 487 thoughtfully designed apartments, ensuring there’s a perfect fit for singles, couples, and families alike. Whether you are looking for a cozy 2 BHK apartment or a spacious 4 BHK luxury flat, Godrej Air has options tailored just for you.

    \n\n

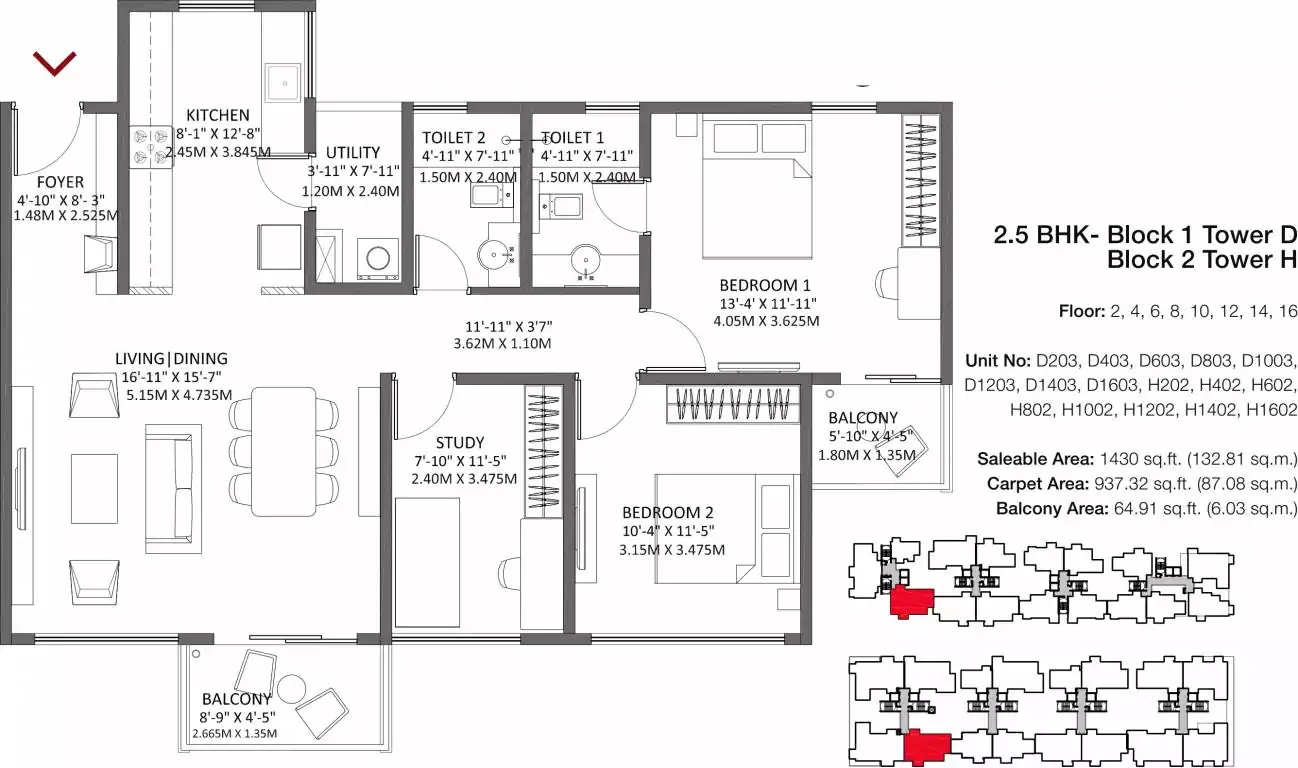
    The 2 BHK apartments at Godrej Air come in two spacious sizes—1430 sq. ft. and 1776 sq. ft. Each unit is crafted to offer maximum space and natural light. Large living rooms, airy bedrooms, and functional kitchens make these apartments a great pick for young professionals and small families. The interiors are finished with premium fittings and fixtures, ensuring a modern and sophisticated lifestyle.

    \n\n

    If you’re seeking more space, the 3 BHK flats in Godrej Air are available in 1639 sq. ft. and 1853 sq. ft. layouts. These homes are perfect for growing families, giving you plenty of room to relax and entertain. The floor plans are smartly designed so every area is usable and comfortable, from the wide windows to the elegant dining spaces. Families can enjoy both privacy and togetherness in these well-planned residences.

    \n\n

    For those who want a truly lavish lifestyle, the 4 BHK apartments at Godrej Air span a massive 3181 sq. ft. These ultra-spacious apartments offer grand living spaces, multiple bedrooms, and premium fixtures. Imagine hosting gatherings in your expansive living room or unwinding in a luxurious master suite after a long day. The attention to detail in the design means every member of your family feels at home.

    \n\n

    Life at Godrej Air Residential Apartments is about more than just the interiors. The project is packed with top-notch amenities like landscaped gardens, a large swimming pool, a modern gymnasium, a stylish clubhouse, and dedicated children’s play areas. These features make sure you have everything you need for a healthy, active, and social lifestyle right within the complex.

    \n\n

    The central location of Godrej Air Residential Apartments is another huge advantage. You’re close to schools, hospitals, shopping centers, and entertainment hubs. Easy access to highways and public transport means your daily commute is hassle-free. The property’s secure environment and excellent connectivity make it a great option for those who want a safe and convenient place to call home.

    \n\n

    Looking for your dream home? Godrej Air Residential Apartments offers the perfect blend of luxury, convenience, and modern amenities. With flexible floor plans, state-of-the-art facilities, and a prime city location, it’s no wonder this project is a top choice for homebuyers searching for luxury flats, residential apartments, and premium real estate investments in the city.

    Get instant callback