Infocity Emerald - Floor Plan

    Complete overview Of Floor Plans & Pricing for Infocity Emerald

    Infocity Emerald Residential Apartments: A Luxurious Haven in the Making

    Infocity Emerald Residential Apartments is an upcoming residential project that promises to redefine luxury living in the heart of the city. Spread across acres of prime land, this project boasts a total of 65 units, offering a wide range of options to suit the diverse needs and preferences of potential homeowners. With a variety of 2 BHK, 3 BHK, and Bhk units available, Infocity Emerald ensures that there is something for everyone.

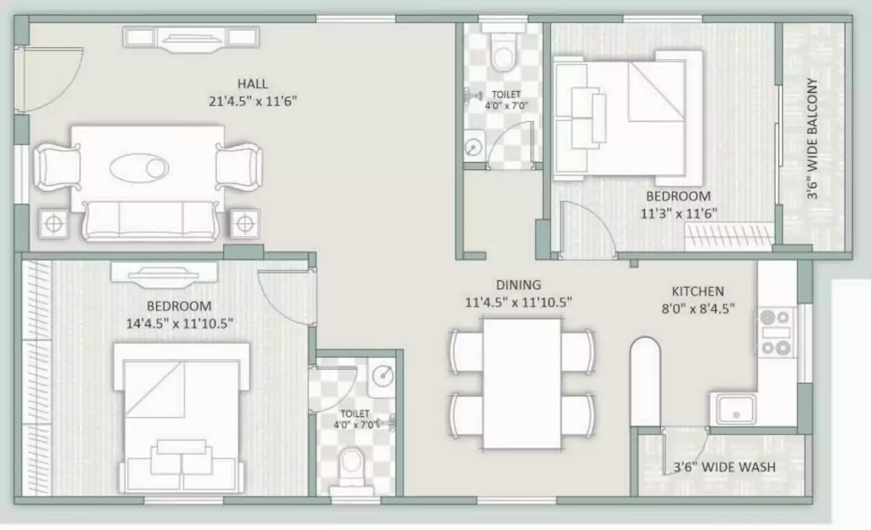
    One of the key highlights of this project is its floor plan, which has been meticulously designed to maximize space utilization and provide a comfortable living experience. The apartments are available in various sizes, ranging from 1285 square feet to 1601 square feet, ensuring that residents have ample space to create their dream home.

    The 2 BHK units in Infocity Emerald are available in two sizes - 1285 square feet and 1525 square feet. These apartments are perfect for small families or individuals looking for a cozy yet spacious living space. With well-designed layouts, these units offer a living room, dining area, kitchen, two bedrooms, and two bathrooms, providing all the essential amenities required for a comfortable lifestyle.

    For those in need of more space, the 3 BHK units in Infocity Emerald are an ideal choice. These apartments are available in sizes of 1515 square feet and 1601 square feet, offering ample room for larger families or individuals who desire extra space. The 3 BHK units feature a spacious living room, dining area, kitchen, three bedrooms, and three bathrooms, ensuring that every member of the family has their own private space.

    The floor plan of Infocity Emerald has been thoughtfully designed to ensure optimal natural light and ventilation in every apartment. Large windows and balconies allow for ample sunlight to flood the living spaces, creating a bright and airy atmosphere. The open layout of the apartments further enhances the sense of space, making them feel even more expansive.

    In addition to the well-designed apartments, Infocity Emerald also offers a range of amenities that cater to the needs of modern-day residents. These include a swimming pool, gymnasium, landscaped gardens, children's play area, and a clubhouse, among others. The project also boasts ample parking space and round-the-clock security, ensuring the safety and convenience of its residents.

    It is important to note that Infocity Emerald is currently under construction, which means that potential homeowners have the opportunity to customize their apartments according to their preferences. From choosing the color scheme to selecting the fixtures and fittings, residents can personalize their living spaces to reflect their unique style and taste.

    Infocity Emerald Residential Apartments is a project that offers luxurious living spaces in a prime location. With its well-designed floor plan, a variety of unit sizes, and a range of amenities, this project is set to become a sought-after address for those seeking a comfortable and stylish lifestyle. Whether you are a small family, a large family, or an individual looking for a spacious home, Infocity Emerald has something to offer for everyone. So, why wait? Book your dream home in Infocity Emerald today and experience the epitome of luxury living.

    Get instant callback