Master Royal Meenakshi - Floor Plan

    Complete overview Of Floor Plans & Pricing for Master Royal Meenakshi

    Floor plans are an essential aspect to consider when purchasing a new residential property. They provide a detailed layout of the available space, allowing potential buyers to visualize how they can utilize the area to suit their needs. One such project that offers a range of floor plans is the Master Royal Meenakshi Residential Apartments.

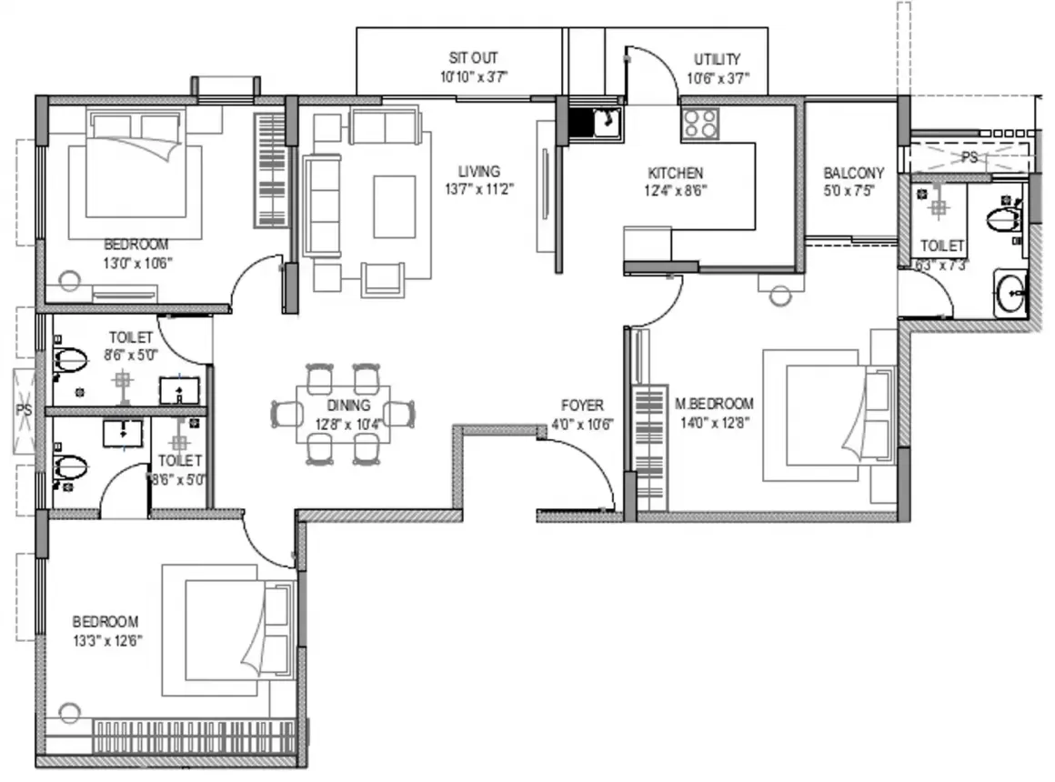
    Spread across a sprawling 1-acre land, the Master Royal Meenakshi Residential Apartments project is currently under construction. With a total number of units available on request, this project offers a variety of options to cater to different preferences and requirements. The project features various types of 2 BHK, 3 BHK, and BHK units, ensuring there is something for everyone.

    The floor plans of the Master Royal Meenakshi Residential Apartments project are designed to maximize space utilization and provide a comfortable living experience. Let's take a closer look at some of the available floor plans:

    1. 2 BHK (1333 sq. ft.): This floor plan offers a spacious living area with two bedrooms, a kitchen, dining space, and two bathrooms. The layout is thoughtfully designed to provide ample space for a small family or individuals looking for a cozy yet functional home.

    2. 2 BHK (1440 sq. ft.): With a slightly larger area, this floor plan offers two bedrooms, a kitchen, dining space, two bathrooms, and a living area. The additional space allows for more flexibility in terms of furniture arrangement and storage options.

    3. 3 BHK (1965 sq. ft.): Ideal for larger families, this floor plan features three bedrooms, a kitchen, dining space, three bathrooms, and a spacious living area. The extra bedroom can be utilized as a guest room, home office, or a dedicated space for hobbies and activities.

    4. 3 BHK (1740 sq. ft.): Similar to the previous floor plan, this layout also offers three bedrooms, a kitchen, dining space, three bathrooms, and a living area. The difference lies in the overall area, which provides a slightly more compact yet comfortable living space.

    These are just a few examples of the floor plans available at the Master Royal Meenakshi Residential Apartments project. The project also offers other options, including larger or smaller units, to cater to individual preferences and budgets.

    In addition to the well-designed floor plans, the Master Royal Meenakshi Residential Apartments project boasts a range of amenities and facilities. These include landscaped gardens, a swimming pool, a gymnasium, a clubhouse, and 24/7 security, among others. The project aims to provide a holistic living experience, ensuring residents have access to all the necessary conveniences within the premises.

    the Master Royal Meenakshi Residential Apartments project offers a range of thoughtfully designed floor plans to suit different needs and preferences. Whether you are a small family, a couple, or an individual looking for a comfortable living space, this project has something for everyone. With its prime location, amenities, and under-construction status, this project presents an excellent opportunity for those seeking a new home.

    Get instant callback