Sai Purvi Khosala - Floor Plan

    Complete overview Of Floor Plans & Pricing for Sai Purvi Khosala

    Are you searching for your dream home in Bangalore? Let’s explore the detailed floor plans and features of the Sai Purvi Khosala Residential Apartments project! Nestled in a prime area, Sai Purvi Khosala is one of the top residential projects offering modern living spaces with a blend of comfort, luxury, and convenience. This project stands out among new apartment complexes in Bangalore, with its thoughtfully crafted layouts and top-notch amenities.

    \n\n

    Covering an expansive 1 acre, Sai Purvi Khosala Residential Apartments boasts 68 ready-to-move-in units. You’ll find a variety of options, including 2 BHK apartments, 3 BHK flats, and even spacious 4 BHK homes. Each apartment is designed to maximize natural light and airflow, making every corner of your home bright and airy. The project offers a safe, peaceful, and vibrant environment, making it a perfect choice for families, professionals, and investors alike.

    \n\n

    If you are a small family or a young couple, the 2 BHK apartments in Sai Purvi Khosala are an excellent fit. These units cover a built-up area of 1135 square feet. The floor plan includes a welcoming living room, two cozy bedrooms, two modern bathrooms, a modular kitchen, and a scenic balcony. The layout is well-planned to ensure every inch is used efficiently, providing a comfortable and practical living space for everyday life.

    \n\n

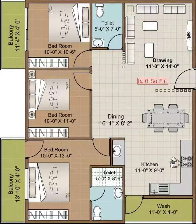
    Need more room for your growing family? Check out the 3 BHK apartments in Sai Purvi Khosala. You get to choose between two floor plan sizes - 1340 sq. ft. and 1410 sq. ft. Both options offer a large and sunny living room, three comfortable bedrooms, two well-appointed bathrooms, a contemporary kitchen, and a pleasant balcony. These homes are perfect for families looking for extra space without compromising on style and comfort.

    \n\n

    For those who desire generous living areas, Sai Purvi Khosala Residential Apartments also features 4 BHK apartments. These expansive homes are designed to offer luxury, privacy, and plenty of room for everyone. While the exact floor area details aren’t specified, these residences are tailored to meet the needs of larger families or individuals who want a spacious home with a touch of elegance.

    \n\n

    All apartments at Sai Purvi Khosala are crafted with a focus on functionality and style. The living rooms are perfect for relaxing or entertaining guests. Bedrooms are tranquil, making them ideal retreats after a long day. The kitchens come fully equipped with modern fittings, turning cooking into a delightful experience. Bathrooms feature high-quality fixtures, ensuring a premium feel every day. And don’t forget the balconies – they offer lovely views and a space to enjoy the outdoors right from your home.

    \n\n

    Located in a sought-after neighborhood, Sai Purvi Khosala Residential Apartments is close to schools, shopping malls, hospitals, and major transit routes. With its luxury apartments in Bangalore, modern floor plans, and family-friendly layout, this project is ideal for anyone looking for a new home in the city. Whether you’re searching for ready-to-move flats, affordable apartments, or spacious residential units in Bangalore, Sai Purvi Khosala could be the perfect match for your needs.

    \n\n

    What type of apartment are you looking for? Are you interested in a cozy 2 BHK, a large 3 BHK, or a luxury 4 BHK home? Let’s dive deeper into which floor plan suits your lifestyle best at Sai Purvi Khosala Residential Apartments!

    Get instant callback