
Shanta Brookwoods
villa in kismatpur
Shanta Brookwoods Overview
- Land Area7 Acres
- Construction Statusready to move
- Possession DateAugust 2022
- Typologyresidential
- Residential Typevilla
- Dimensions3,610 - 5,193 Sqft
- Total Units47
- Unit Typology3 & 4 BHK
- ElevationOn Request
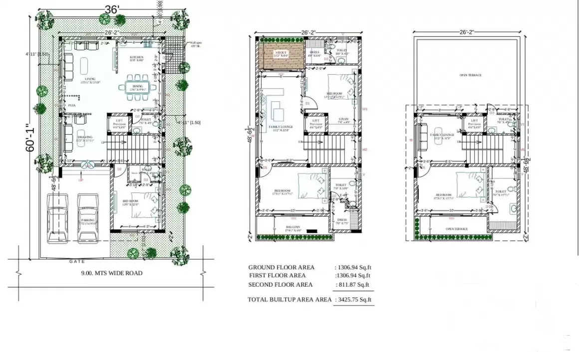
Floor Plan and Pricing
View Floor Plan and Pricing of Shanta Brookwoods
Take a closer look at the merits of Shanta Brookwoods
- ready to move property
- Only 47 units available
- Covers 7 acres of land area
- Located in kismatpur
- Close Proximity To Schools & Hospitals
- 25+ World Class Amenities

Properties in this Project
Amenities and Features
Address and Location
Kismatpur, Hyderabad
- Localitykismatpur
- Cityhyderabad
- Statetelangana
- CountryIndia
- Zip Code500086
- Verified Tenants/Buyers
- Unlimited Property Listing
- Zero subscription/charges fee
More about Shanta Brookwoods
RERA - On RequestThe Information mentioned here was last updated on:
2026-02-25Shanta Brookwoods Kismatpur: Luxury Flats in Kismatpur, Hyderabad
Set amidst the lush expanse of Kismatpur, Shanta Brookwoods Hyderabad presents a sophisticated alternative for buyers seeking luxury flats in Kismatpur that balance tranquility with urban connectivity. Developed by Shanta Sriram Group, this premium gated community spans six acres of meticulously landscaped grounds, offering 3 BHK flats in Hyderabad and 4 BHK flats in Kismatpur tailored to the needs of discerning families, professionals, and investors. With an emphasis on green living, modern architecture, and seamless access to Hyderabad’s key districts, Shanta Brookwoods is positioned as a compelling address for those prioritizing both lifestyle and long-term value.
Project Overview: Serenity Meets Modern Comfort
Shanta Brookwoods Kismatpur is designed to provide an elevated standard of living within a vibrant yet peaceful environment. The project’s master plan integrates expansive green zones, curated gardens, and scenic walking paths, creating a natural respite from the city’s intensity. Spacious residences, crafted with attention to detail, offer flexible configurations: whether it’s a well-ventilated 3 BHK flat near Gachibowli or an expansive 4 BHK apartment close to Mehdipatnam, buyers benefit from floor plans that adapt to evolving family needs. The interiors feature premium materials, intelligent storage, and large windows, ensuring abundant natural light and outdoor views. Each home is finished to exacting standards, blending functional elegance with inviting warmth—hallmarks that resonate with both end users and investors searching for gated community apartments in Hyderabad.
Location & Connectivity: The Kismatpur Advantage
Kismatpur occupies a unique position within Hyderabad’s western corridor, offering proximity to technology hubs and daily conveniences without the congestion typical of denser micro-markets. Residents at Shanta Brookwoods benefit from direct connectivity to Gachibowli, the Financial District, and Mehdipatnam, making commutes to workplaces and educational institutions remarkably efficient. The Outer Ring Road (ORR) is easily accessible, facilitating swift travel to the airport, HITEC City, and other business centers. Esteemed schools, hospitals, supermarkets, and retail destinations are all within a short drive, ensuring daily needs are met effortlessly. For those prioritizing location, the project’s address balances urban accessibility with the restorative calm of its natural surroundings—an increasingly rare combination in Hyderabad’s fast-growing real estate landscape.
Pricing & Investment Perspective
Shanta Brookwoods Hyderabad offers competitive pricing for its segment, reflecting both the scale of amenities and the premium attached to gated communities in Kismatpur. The project’s price advantage becomes evident when benchmarked against comparable developments in Gachibowli or the Financial District, where similar configurations often command a significant premium. For investors, the micro-location’s steady appreciation rate, coupled with growing infrastructural upgrades (such as new link roads and proposed metro extensions), enhances rental yields and future resale potential. Flexible payment options and transparent pricing policies further strengthen the project’s appeal, making it a prudent choice for both seasoned investors and end users seeking value in Hyderabad’s residential market.
Amenities & Lifestyle Positioning
Life at Shanta Brookwoods Kismatpur is defined by a comprehensive suite of amenities designed for modern lifestyles. The clubhouse forms the community’s social core, hosting events and providing spaces for recreation and coworking. Fitness enthusiasts appreciate the well-equipped gymnasium, outdoor sports courts, and jogging tracks, while the swimming pool offers a refreshing retreat. Dedicated play areas give children a safe environment for exploration and friendship. Landscaped gardens and meditation zones cater to those seeking quietude. The project’s security infrastructure—featuring 24/7 surveillance, gated entry, and ample parking—ensures peace of mind for residents. These amenities collectively position Shanta Brookwoods among the best luxury apartments in Kismatpur, fostering a sense of belonging and well-being.
Market Comparison & Growth Insights
Compared to established micro-markets like Gachibowli and Kukatpally, Kismatpur offers a compelling blend of affordability and long-term growth. Infrastructure upgrades—such as the expansion of the ORR and improved road connectivity—are accelerating residential demand. Shanta Brookwoods stands out for its thoughtful master planning and environmental initiatives, including rainwater harvesting, advanced waste management, and lush green landscaping. These sustainable practices not only reduce the project’s ecological footprint but also future-proof resident well-being. With a limited supply of luxury gated communities in this precinct, the project is well-positioned to benefit from rising demand among professionals working in Hyderabad’s tech corridors and NRIs seeking stable, lifestyle-oriented investments.
Frequently Asked Questions about Shanta Brookwoods Kismatpur
What configurations are available at Shanta Brookwoods Kismatpur?
The project offers spacious 3 BHK and 4 BHK flats in Kismatpur, with flexible floor plans catering to various family sizes and lifestyle preferences.
How is the location of Shanta Brookwoods Hyderabad advantageous?
Set in the fast-developing Kismatpur area, residents enjoy excellent connectivity to Gachibowli, Mehdipatnam, Financial District, and the Outer Ring Road, with reputed schools, hospitals, and retail outlets close by.
What amenities are provided within the gated community?
Residents have access to a clubhouse, swimming pool, fitness center, sports courts, jogging tracks, landscaped gardens, children’s play areas, and comprehensive security systems.
How does Shanta Brookwoods compare to other projects in Hyderabad?
The project offers a rare combination of premium amenities, green spaces, and competitive pricing, especially when compared to luxury apartments in Gachibowli and similar micro-markets.
Is Shanta Brookwoods Hyderabad suitable for investment?
With its strategic location, sustainable features, and robust infrastructure growth in Kismatpur, the project provides strong rental yield potential and long-term capital appreciation for investors and NRIs.
Conclusion: A Distinctive Address in Kismatpur
Shanta Brookwoods Kismatpur distinguishes itself through a thoughtful synthesis of luxury, sustainability, and connectivity. For homebuyers and investors exploring luxury flats in Kismatpur or gated community apartments in Hyderabad, the project delivers on both lifestyle aspirations and investment fundamentals. With flexible configurations, competitive pricing, and a setting that nurtures well-being, Shanta Brookwoods invites discerning buyers to explore a new benchmark in urban living—where nature, security, and modern comforts converge seamlessly. Schedule a visit or request detailed price information to discover how this community elevates residential possibilities in Hyderabad’s evolving landscape.
Property markets are dynamic, and listings for properties for sale may change based on demand, availability, developer updates, and local regulations. Pricing, configurations, amenities, and possession timelines can vary across projects and locations. Buyers exploring properties for sale should conduct their own due diligence, compare multiple options, and assess long-term value in line with their financial plans and lifestyle goals. All details shared on property pages are provided for general informational purposes only. Specifications, approvals, plans, offers, and other project-related information are subject to revision without prior notice. Prospective buyers are advised to verify every aspect directly with authorised sales teams, developers, and legal or financial advisors before proceeding with any booking or transaction. Nothing contained herein should be treated as a binding commitment, investment advice, or formal offer. Real estate decisions involve individual risk considerations, and any action taken based on the information provided is solely at the reader’s discretion.
























