Subishi Silver Oaks Apartment - Floor Plan
Complete overview Of Floor Plans & Pricing for Subishi Silver Oaks Apartment
Subishi Silver Oaks Apartment is a luxurious residential project spread across acres of land, offering a wide range of floor plans to suit the needs and preferences of potential buyers. With a total number of units available on request, this property is ready to move in, providing convenience and comfort to its residents.
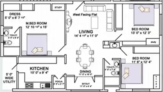
One of the highlights of Subishi Silver Oaks Apartment is the variety of 3 BHK floor plans available. These spacious apartments are designed to provide ample living space for families, couples, or individuals looking for a comfortable and modern living environment. The different layouts cater to different lifestyles and preferences, ensuring that there is something for everyone.
The floor plans of the 3 BHK apartments at Subishi Silver Oaks Apartment range from 1523 square feet to 1552 square feet. These well-designed spaces offer a perfect blend of functionality and aesthetics, with thoughtfully planned layouts that maximize the use of space. Each apartment is meticulously crafted to provide a comfortable and luxurious living experience.
In addition to the 3 BHK apartments, Subishi Silver Oaks Apartment also offers other types of units, including 2 BHK and 4 BHK options. This diverse range of floor plans ensures that buyers have a variety of choices to suit their specific requirements and preferences.
The 2 BHK apartments at Subishi Silver Oaks Apartment are designed to provide a cozy and comfortable living space, perfect for small families or individuals looking for a compact yet functional home. The 4 BHK apartments, on the other hand, offer a more spacious and luxurious living environment, ideal for larger families or those who desire more room for their lifestyle needs.
The sizes of the 2 BHK and 4 BHK apartments at Subishi Silver Oaks Apartment are available on request, allowing potential buyers to choose the unit that best fits their needs and budget.
Apart from the well-designed floor plans, Subishi Silver Oaks Apartment also offers a range of amenities and facilities to enhance the living experience of its residents. These include landscaped gardens, a swimming pool, a gymnasium, a clubhouse, and 24/7 security, among others.
Located in a prime location, Subishi Silver Oaks Apartment offers easy access to various social and commercial hubs, ensuring that residents have everything they need within reach. The project is also well-connected to major transportation networks, making commuting a breeze.
Subishi Silver Oaks Apartment is a residential project that offers a variety of floor plans to cater to the diverse needs and preferences of potential buyers. With its ready-to-move-in status and range of amenities, this property provides a comfortable and luxurious living experience. Whether you are looking for a 3 BHK, 2 BHK, or 4 BHK apartment, Subishi Silver Oaks Apartment has something to offer for everyone.
- Get More Details:
- Get Subishi Silver Oaks Apartment Location
- Subishi Silver Oaks Apartment Amenities and Specifications
- Download or View Subishi Silver Oaks Apartment Floor Plans and Master Plan
- View Subishi Silver Oaks Apartment Gallery
- Download or View Subishi Silver Oaks Apartment Price Details
- An Overview of Subishi Silver Oaks Apartment